This spacious family home is located in the highly desirable Walkley Heights community, offering modern living with excellent convenience. With solar panels for energy efficiency, multiple living areas, and a well-thought-out floor plan, this property is perfect for families looking for both comfort and functionality.
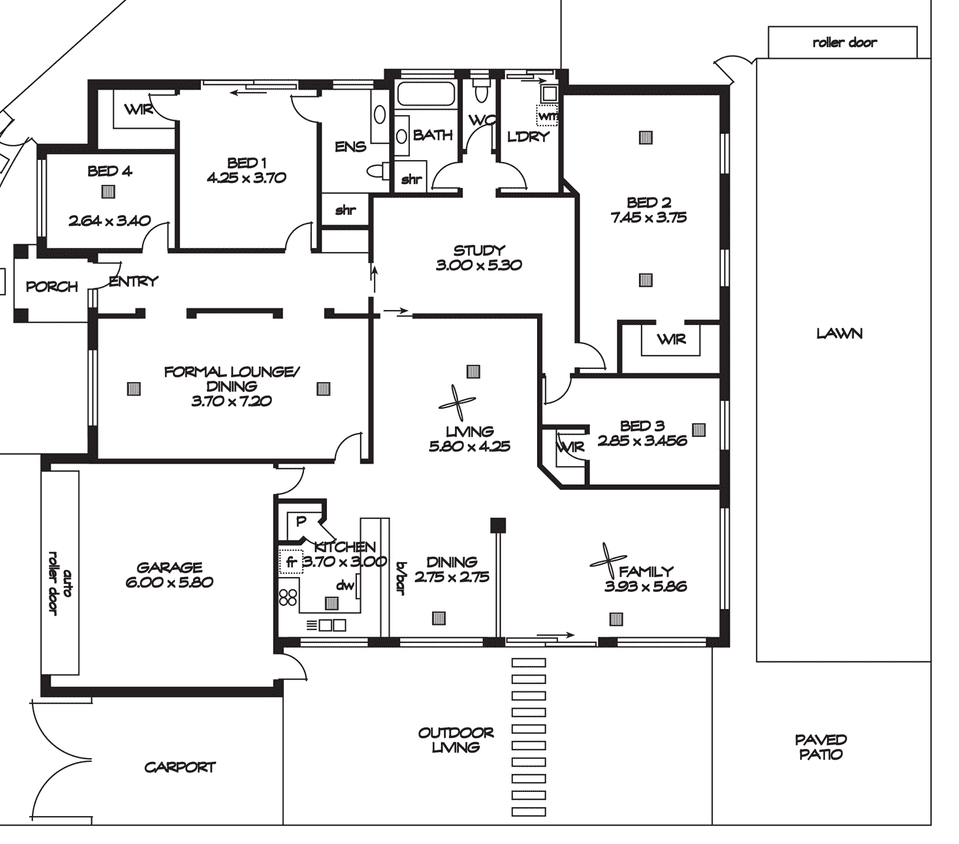
Four generous bedrooms, all with built-in storage, including a master suite with ensuite for privacy and comfort.
Second bathroom with separate toilet, designed for easy family living.
Open-plan kitchen with modern appliances, ample bench space, and storage.
Spacious living and dining areas, ideal for entertaining and family gatherings.
Solar panels, helping reduce energy costs while supporting sustainable living.
Secure parking with multiple spaces.
Low-maintenance backyard perfect for outdoor enjoyment.
Situated in the sought-after Walkley Heights Estate, known for its quiet streets, parks, and family-friendly atmosphere.
Minutes from Ingle Farm Shopping Centre and Tea Tree Plaza for retail, dining, and entertainment.
Close to local schools including Valley View Secondary School and nearby early learning centres.
Easy access to public transport and major roads for a convenient commute to the Adelaide CBD.
Surrounded by reserves and walking trails, providing an active and relaxed lifestyle.
This property is an ideal combination of modern features, energy efficiency, and prime location.
📞 Contact:
Steve – 0452 602 966 (Text preferred)

At Teng Dragon Real Estate, we are committed to providing exceptional service in buying, selling, and managing properties. With a deep understanding of the real estate market and a focus on client satisfaction, we aim to deliver tailored solutions that meet your unique needs. Whether you're looking for your dream home, an investment opportunity, or reliable property management, Teng Dragon Real Estate is your trusted partner every step of the way.
info@tengdragonre.com.au
+61 430 961 552
Compare listings
ComparePlease enter your username or email address. You will receive a link to create a new password via email.
